Les allées Hikari

Grenoble - France

Année : 2019 – 2024

Lieux : France, Auverge Rhone-Alpes, Crolles

Phase : AVP / PC / PRO – Redraw

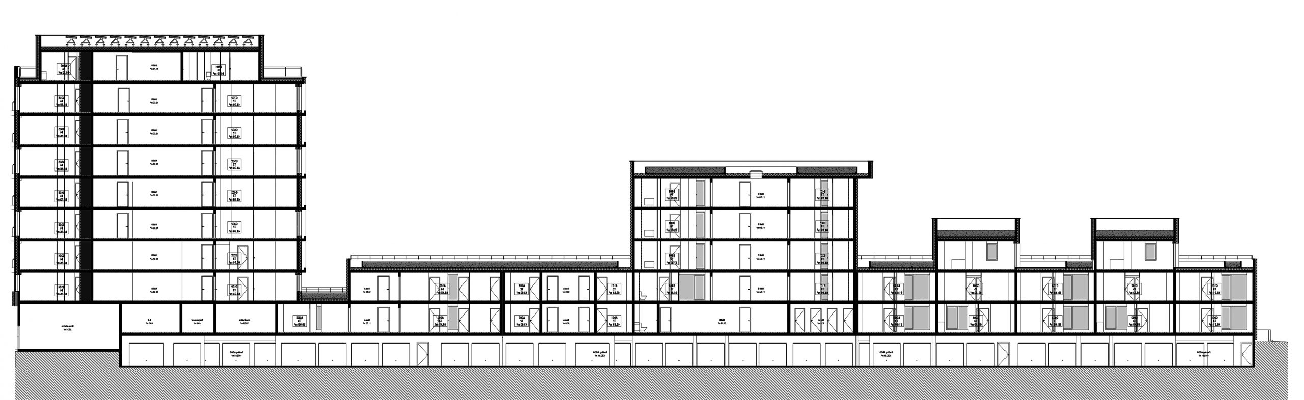
Programme :  152 logements à Grenoble – 9927 m² SDP

© Redraw

Le projet prévoit la construction de 2 bâtiments distincts, culminants pour l’un en R+7 + attique et l’autre en R+8 + attique.

Ces deux bâtiments sont organisés en deux bandes parallèles, d’orientation Nord-Sud, partant de l’avenue des Jeux Olympiques pour rejoindre le chemin de la Poterne.

Ces bâtiments regroupent 152 logements. Chacune des deux bandes est structurée en RDC et R+1 par des logements traversants, dont l’accès se fait par la partie centrale, et donnant sur les faces Est et Ouest sur des jardins privatifs.

© Redraw
© Redraw
Toutes les images de cette page sont copyright © Redraw