Maison du Parc Naturel Régional de Chartreuse et office de tourisme
Saint-Pierre de Chartreuse - France
Année : 2018 – 2024
Lieux : France, Auverge Rhone-Alpes, Saint-Pierre de Chartreuse
Phase : APS / APD / PRO / DCE / DET
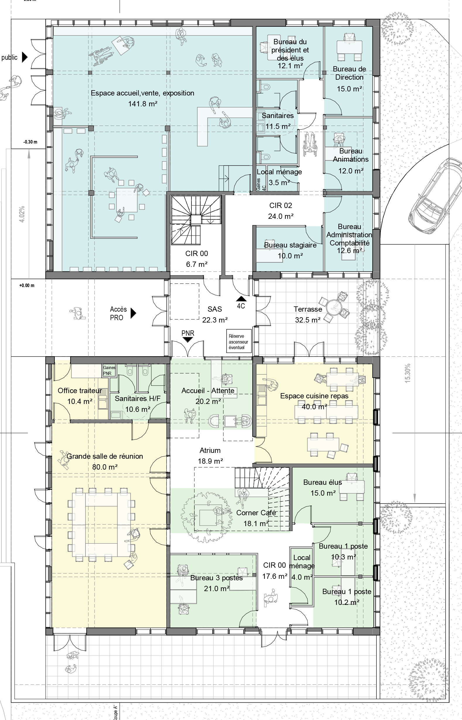
Programme : Maison du Parc Naturel Régional de Chartreuse et office de tourisme – 2000 m²
Le projet se construit sur une stratification horizontale, conforme à la topographie du Plan de Ville et à son réaménagement. Il s’inscrit comme une respiration singulière dans le cirque des massifs qui l’entoure. La première strate est minérale, socle de pierre qui arrime le bâtiment à son terrain puis s’ouvre pour accueillir l’emmarchement qui le lie à la topographie et au parvis public.
La seconde est un plan de verre, mur rideau d’aiguilles bois qui décrit l’ensemble des volumes du rez de chaussée et les ouvre à la lumière naturelle. Sur cette orientation sud-ouest, face au parvis, la transparence désigne la vocation publique des espaces, Office du Tourisme et salle de réunions partagées.
Une première rive de toit, surligne ce volume d’un trait de zinc, contrôle son exposition au soleil d’ouest et protège des intempéries la galerie qui les distribue.
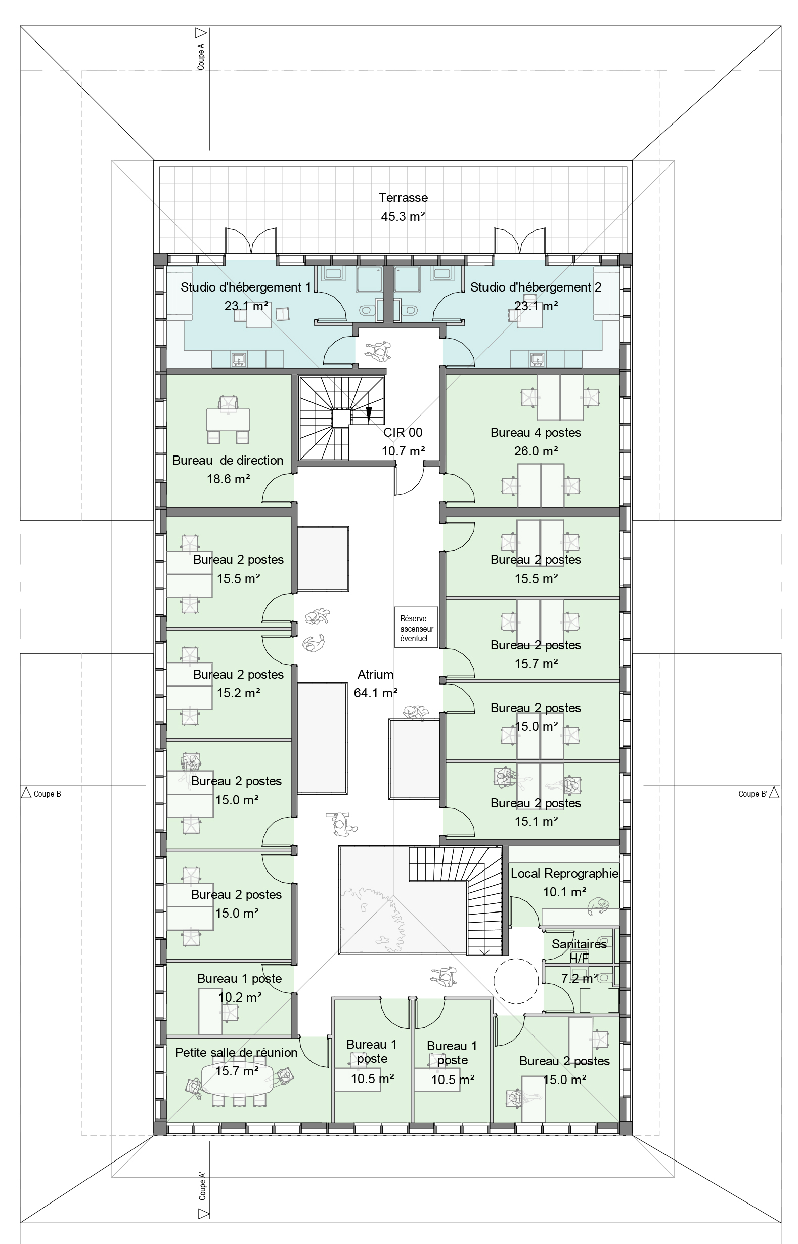
La strate supérieure est celle de l’étage du Parc, cernée du mur rideau bois qui offre aux bureaux la vue sur le paysage et la lumière naturelle. Une deuxième rive de zinc confirme l’horizontalité des lignes architecturales et accueille dans sa partie supérieure une couverture végétalisée spécifique, adaptée au climat de montagne. Ainsi revêtu, la perception du toit se lie à celle des prairies environnantes qui constitue le paysage. La césure au centre de la façade sud-ouest, qui désigne l’accès au sas thermique, est explicite de l’organisation du projet. D’un côté l’office du Tourisme, de l’autre la Maison du parc, deux partenaires distincts et autonomes mais solidaires et complémentaires



















