Logements collectifs

Domène - France

Année : 2023

Lieux : France, Auverge Rhone-Alpes, Domène

Phase : Faisabilité – Redraw

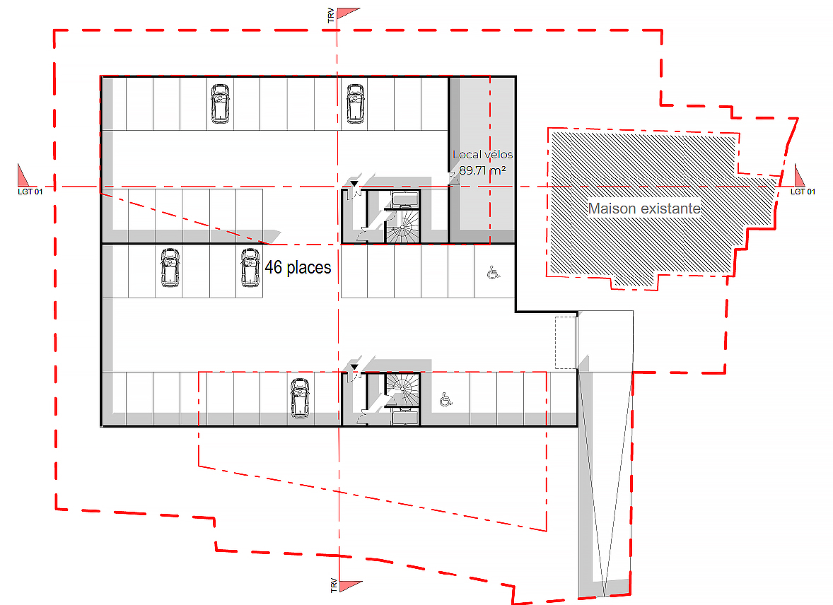
Programme :  48 logements, 3394 m² SDP

© Redraw

Étude de faisabilité réalisée sur le site du 54 rue Jean Jaurès, à Domène. L’objectif de cette conception était d’optimiser au mieux le terrain disponible, tout en visant une intégration harmonieuse du projet dans son contexte immédiat.

La forme de la parcelle, offrant uniquement un linéaire très limité sur l’emprise publique, a conduit à la mise en place des constructions en deux entités distinctes, les deux atteignant un niveau R+4, pour un total de 48 logements.

Cette implantation est à la base de tout le projet : habiter le cœur de l’îlot. La faille créée par les deux entités devient le centre névralgique du projet, et abrite une atmosphère chaleureuse. Les façades « extérieures » sont traitées comme une coquille, d’un aspect très épuré, afin de renforcer le dynamisme et l’énergie du cœur de l’îlot.

© Redraw
© Redraw
Toutes les images de cette page sont copyright © Redraw