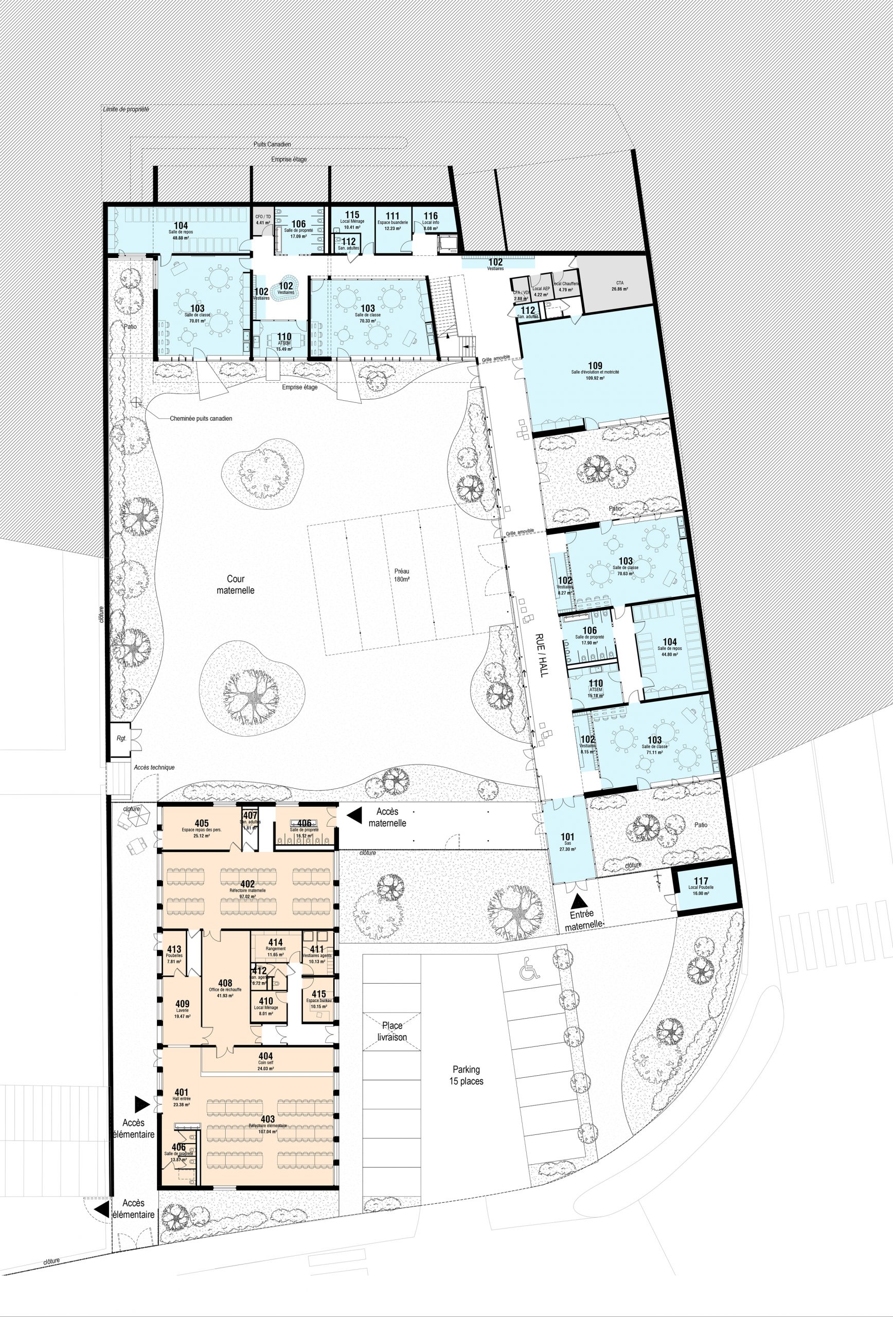
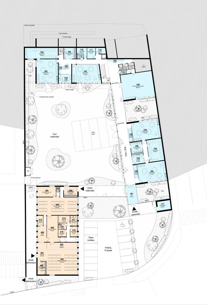
La nouvelle école maternelle d’Arnas est un outil pédagogique. La construction de six classes, de la salle de motricité et du restaurant permet de reconfigurer l’ensemble du groupe scolaire et du centre de loisirs. Le projet acquiert ainsi une dimension et une responsabilité qui dépasse son propre objet et intéresse tout le monde scolaire. Un premier jardin (d’instituteur) accompagne l’accès à l’école, affirmant déjà le parti de l’école au cœur du parc. Le hall est une rue qui longe la cour. Vitrée sur la cour, elle distribue la lumière naturelle dans toutes les alcôves de service qui la bordent.